Новая техника
Автогрейдер GR5505TPro
Подробнее
Описание
Гарантия: 12 месяцев или 2000 м/ч
Сопроводительные документы:
- Универсальный передаточный документ (УПД)
- Акт приема-передачи.
- Копия сертификата соответствия.
- Техническая документация, необходимая для эксплуатации Техники (паспорт, техническое описания и руководство по эксплуатации).
Коммерческое предложение действительно 5 рабочих дней.
Компания «СюйГун Ру» осуществляется гарантийное и послегарантийное сервисное обслуживание сертифицированными механиками, проходящими стажировку на заводе.
Вся продаваемая техника сертифицирована EAC.
Технические характеристики
| Наименование | Единица измерения | GR5505TPro |
|---|---|---|
| Модель двигателя | 2806D-E18TA | |
| Мощность при числе оборот об/мин | кВт | 447 |
| Габариты | мм | 16430х4460х4810 |
| Масса | кг | 74000 |
| Тип шин | 29,5 - 29 | |
| Клиренс (передняя ось) | мм | 890 |
| Расстояние между передней и задней осями | мм | 10345 |
| Расстояние между задней и средней осями | мм | 2240 |
| Ширина колеи | мм | 3650 |
| Max угол поворота передних колес | град | ±49º |
| Max угол наклона передних колес | град | 18º |
| Max угол качания передней оси | град | ±16º |
| Max угол качания балансирной тележки | град | ±20º |
| Мах угол поворота рамы | град | ±25º |
| Min радиус поворота | м | 12,5 |
| Max высота подъема ножа | мм | 460 |
| Max глубина резания ножа | мм | 553 |
| Max угол бокового наклона ножа | град | 55º |
| Угол резания ножа | град | 40º |
| Угол поворота ножа | град | 340º |
| Габариты ножа (длина х высота) | мм | 7300х1025 |
| Передняя скорость | км/ч | 4.6/5.9/8.7/11.7/17.7/25.1/32.2/42.7 |
| Задняя скорость | км/ч | 4.5/8.7/17.2/32.6 |
| Max тяговое усилие | кН | 390 |
| Max крутизна подъема | % | 30 |
| Давление воздуха в шинах | кПа | 475-520 |
| Рабочее давление в системе | МПа | 25 |
| Объем охлаждающего бака | л | 75 |
| Объем топливного бака | л | 1100 |
| Объем двигателя | л | 72 |
| Объем коробки передач | л | 120 |
| Объем балансирной тележки | л | 153 |
| Объем ведущего моста | л | 143 |
| Объем гидравлической жидкости | л | 300 |
| Объем гидравлической жидкости охлаждения тормозов | л | 280 |
| Управление - джойстики |
Комплектация
| Элемент | Модель | Производитель |
|---|---|---|
| Двигатель | 2806D-E18TA | Perkins |
| Мосты | ABM306 | OMCI Italy |
| КПП | 8820H | DANA |
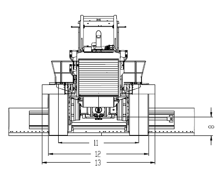
| Basic machine size /mm | |
|---|---|
| 1 Height - cabin top | 4810 |
| 2.Height - front alxe center | 890 |
| 3. Length - Distance between shafts of two wheels | 2240 |
| 4. Length - front axle to scraper | 4048 |
| 5. Length - front axle to center of tandem wheels | 10345 |
| 6 Length - from front ballast to rear ballast | 15100 |
| 7 Length - from front ballast to ripper | 16430 |
| 8 The ground clearance at the rear axle | 720 |
| 9 Height to cylinder top | 3930 |
| 10 Height to exhaust pipe | 3970 |
| 11. Width - tire centerline | 3650 |
| 12. Width - tire outside | 4265 |
| 13 Width - scraper outside | 4460 |
Примечание: этот продукт постоянно обновляется и совершенствуется с техническим прогрессом. Материалы и технические характеристики могут быть изменены без предварительного уведомления. Компания оставляет за собой право интерпретировать вышеуказанное содержание.
Характеристики
| Хит продаж | Новая техника |
| Эксплуатационная масса, т | 74 |
Похожая техника
- Комментарии
Загрузка комментариев...
